Almere

Kruisstraat 25

Omschrijving

Let op Schouten Barmentlo Makelaars biedt deze woning aan met een bieden vanaf-prijs! Luxe, licht en ruimte in hartje Almere-Haven – met royaal dakterras van 40 m²! Welkom in dit bijzonder stijlvolle en volledig instapklare appartement op een toplocatie in het centrum van Almere-Haven. Hier woon je modern, comfortabel én rustig, terwijl alle voorzieningen letterlijk om de hoek liggen. Met een luxe keuken uit 2025, vloerverwarming door de gehele woning en een uitzonderlijk groot dakterras is...

Lees meer

Kenmerken

Status
Beschikbaar
Koopprijs
€ 365.000,- k.k.
Oppervlakte
83 m²
Bouwjaar
1989
Bekijk meer kenmerken

Omschrijving

Let op Schouten Barmentlo Makelaars biedt deze woning aan met een bieden vanaf-prijs!

Luxe, licht en ruimte in hartje Almere-Haven – met royaal dakterras van 40 m²!
Welkom in dit bijzonder stijlvolle en volledig instapklare appartement op een toplocatie in het centrum van Almere-Haven. Hier woon je modern, comfortabel én rustig, terwijl alle voorzieningen letterlijk om de hoek liggen. Met een luxe keuken uit 2025, vloerverwarming door de gehele woning en een uitzonderlijk groot dakterras is dit een appartement dat direct indruk maakt.

- Wonen in het centrum van Almere-Haven, met alle voorzieningen op loopafstand;
- Luxe en volledig instapklaar;
- Exclusieve keuken uit 2025 met geïntegreerde thuiswerkplek;
- Volledig voorzien van vloerverwarming en een moderne tegelvloer met grote tegels en hoge plinten;
- Uniek groot dakterras van ca. 40 m² op het oosten;
- Balkon aan de voorzijde op het westen;
- Twee slaapkamers of flexibel in te delen woon-/werkruimtes;
- Strak afgewerkte vloeren en muren;
- Ruime inpandige berging;
- Servicekosten € 276,25 per maand;
* Oplevering: 1 april 2026.

Hier woon je op een plek waar alles samenkomt. De gezellige en vernieuwde Havenkom met restaurants, terrassen en winkels ligt op loopafstand, net als scholen, het gezondheidscentrum, theater Corrosia, sportvoorzieningen, het (surf)strand en de jachthaven. En wil je de stad uit? Via de dijk rijd je binnen enkele minuten de A6 of A1 op richting de Randstad.

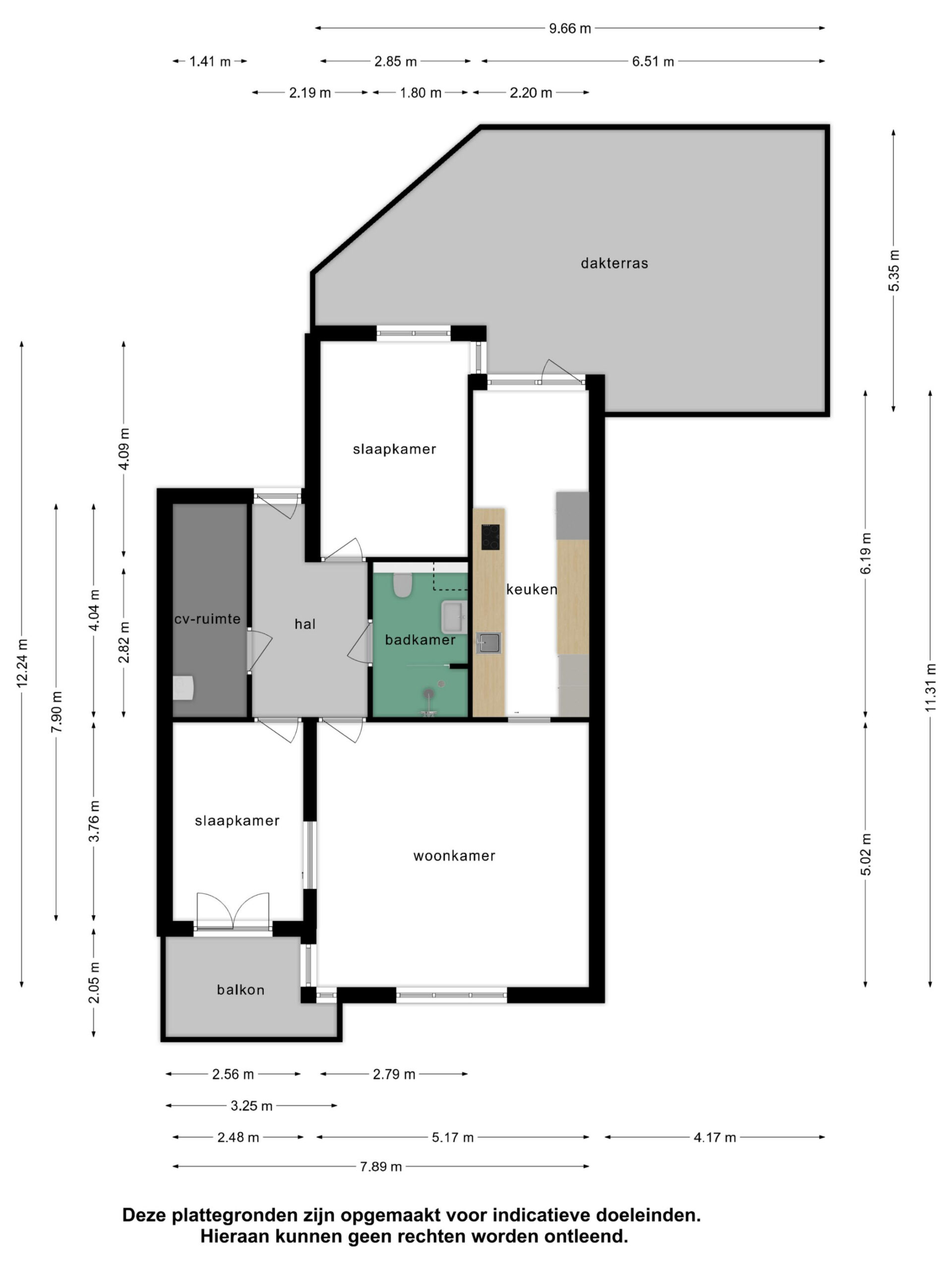
Indeling:
Begane grond
Centrale entree met bellenbord, brievenbussen, trapopgang en toegang tot de bergingen. De woning ligt op de eerste verdieping. Via het voorportaal bereik je de woning.

Zodra je binnenstapt, voel je het: ruimte, rust en kwaliteit. De royale hal met garderobe geeft toegang tot alle vertrekken.
Aan de rechterzijde bevindt zich een uitzonderlijk ruime inpandige berging met aansluitingen voor wasmachine, CV-ketel en de verdeler van de vloerverwarming. Praktisch ingericht met vaste schappen – ideaal voor wie houdt van orde en overzicht. Aan de linkerzijde ligt de moderne badkamer, volledig tot aan het plafond betegeld. Een fijne plek om de dag te beginnen of juist af te sluiten, met een comfortabele inloopdouche met regen- en handdouche, een zitbankje, toilet, wastafelmeubel en een strak nisje voor je verzorgingsproducten.

De woonkamer is licht, ruim en sfeervol. Dankzij de hoekligging en de grote raampartijen met kunststof kozijnen en dubbel glas stroomt het daglicht rijkelijk naar binnen. De strakke afwerking, rustige kleuren en airconditioning (koelen én verwarmen) maken dit een plek waar je elk seizoen graag verblijft. Aan de voorzijde bevindt zich een multifunctionele ruimte die perfect kan dienen als tweede slaapkamer, werkkamer of eetkamer. Vanuit hier stap je zo het balkon op het westen op – een heerlijke plek voor de avondzon.

De keuken is zonder twijfel het pronkstuk van de woning. Deze luxe keuken uit 2025 is uitgevoerd in twee rechte opstellingen met taupekleurige kasten en een prachtig natuurstenen werkblad. Hoogwaardige apparatuur zoals een BORA kookplaat met geïntegreerde afzuiging, Siemens Studioline oven en vaatwasser, een strakke koperkleurige spoelbak met een Quooker (3-in-1 flexkraan) en zeedispenser en een LG koelkast met water- en ijsdispenser maken koken hier een beleving. Uniek is de op maat gemaakte zitbank tussen de kasten, met extra bergruimte eronder – een heerlijke plek om te lezen, te borrelen of simpelweg te genieten van het uitzicht. Daarnaast is er een slim weggewerkte thuiswerkplek achter kastdeuren: werken en wonen vloeien hier moeiteloos samen.

Via de keuken bereik je het royale dakterras van ca. 40 m², gelegen op het oosten. Een zeldzame luxe in het centrum: volop privacy, rust en ruimte voor een grote eettafel én een loungehoek. Hier verleng je je woonruimte naar buiten.

De hoofdslaapkamer bevindt zich aan de achterzijde en kijkt uit op het dakterras. Een rustige, comfortabele ruimte die keurig is afgewerkt. Het gehele appartement is voorzien van op maat gemaakte, elektrisch bedienbare raambekleding (ter overname).

Disclaimer:
Alhoewel zorgvuldig samengesteld, kunnen er aan deze tekst geen rechten worden ontleend. Wij staan dan ook niet in voor de juistheid en volledigheid van de getoonde gegevens.

Overdracht
Status
Beschikbaar
Vraagprijs
€ 365.000,-
Aanvaarding
In overleg
Bouwvorm
Soort object
Appartement
Soort dak
Plat dak
Bouwjaar
1989
Bouwvorm
Bestaande bouw
Ligging
In centrum
Oppervlaktes en inhoud
Woonoppervlakte
83 m2
Externe bergruimte
4 m2
Inhoud
273 m3
Aantal kamers
3
Aantal slaapkamers
2
Aantal woonlagen
1
Tuin
Tuinen
Geen tuin
Achterom
Nee
Schuur / Berging
Schuur
Box
Garage
Geen garage
Voorzieningen
Voorzien van elektra
Parkeer faciliteiten
Openbaar parkeren
Voorzieningen
Voorzieningen
Airconditioning, Glasvezel kabel, Natuurlijke ventilatie
Onderhoud
Permanente bewoning
Ja
Onderhoud binnen
Goed tot uitstekend
Onderhoud buiten
Goed
Huidig gebruik
Woonruimte
Huidige bestemming
Woonruimte
Energie
Energieklasse
C
Energie einddatum
7 maart 2027
Warmwater
CV ketel
Verwarming
CV ketel, Vloerverwarming geheel
Bouwjaar
2002

Foto's

Documenten

Interesse in deze woning?

Verkopen en benieuwd hoe wij werken?

Vraag ons boekje aan en plan een vrijblijvend gesprek!